氣體滅火系統配件
聯系我們
CONTACT US
智淼消防氣體滅火施工安裝公司
聯系人:何經理
服務熱線:4006-598-119
郵箱:1334605518@qq.com
傳真:15262554119
地址:蘇州常熟市黃河路275號
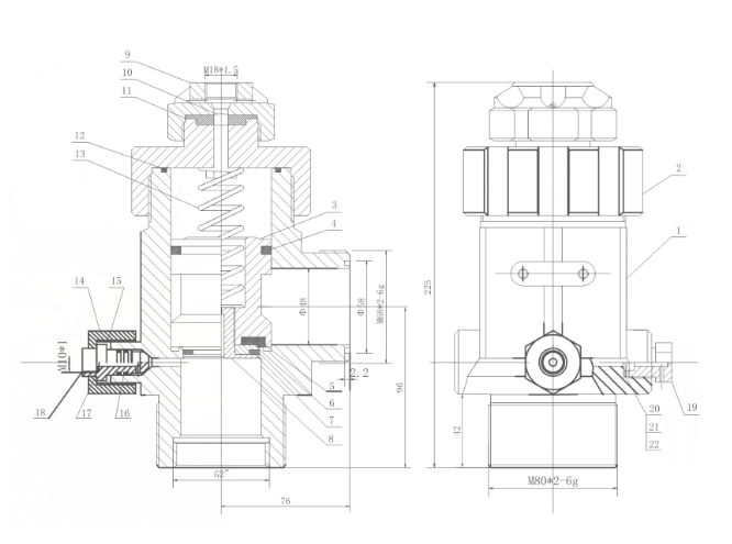
柜式七氟丙烷容器閥
商品類別:氣體滅火系統配件
點擊次數:9106
上架時間:2025年02月10日
全國服務熱線: 4006-598-119
產品描述
柜式七氟丙烷容器閥
技術參數:
容器閥的規格型號:QRF32/4.2-XL、QRF50/4.2-XL 、QRF50/4.2-XL
容器閥結構圖紙:
上一篇:氣體滅火集流管
本文標簽: 柜式七氟丙烷容器閥
最新產品
相關新聞
- 氣體滅火鋼瓶的設計使用年限,檢測周期是什么?2025-09-18
- 外貯壓管網式七氟丙烷管道:綜述與應用分析2025-09-18
- 氣滅啟動鋼瓶內充裝高純氮氣的原因分析2025-09-12
- 可燃固體物質的深位火災滅火方式探討2025-09-12
- 氣體滅火系統的啟動機制2025-08-25
- 氣體滅火系統滅火劑會過期嗎?2025-08-25
- 氣體滅火控制器與感煙、定溫火災探測器:構建多層防線保障消防安全2025-08-19
- 全淹沒二氧化碳系統設計濃度不應小于滅火濃度多少2025-08-19
- 可燃固體物質的深位火災滅火方式探討2025-08-11
- 防護冷卻系統能否與建筑內設置的自動噴水滅火系統共用一個系統?2025-08-11